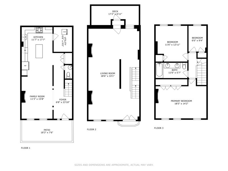
SOLD 1928 N. BISSELL CHICAGO, IL 60614
$1,049,500- 3 Beds
- 1.1 Baths
- N/A Square Feet
What we love:
A+++ location steps from Armitage, incredible outdoor space and up-to-the-minute finishes
What you’ll love:
Schedule an appointmentRecent renovation, vintage details throughout incl stained glass & 4 fireplaces and parking included
Listing Agent: Mario Greco
312-324-4312
[email protected]